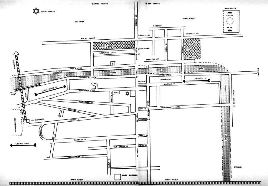
Map pages
Translated by Dorothy Gross Nadosy
|
|
|
| Location on map |
Translation |
| Ardő |
Forest |
| Belső Pázsit |
Inner Green |
| Cigány tábor |
Gypsy camp |
| Csizalji erdő |
Csizalji forest |
| Kis Állomás |
Small Station |
| Kis Vasút |
Small Railway |
| Kulső Pázsit |
Outer Green |
| Loversenytér |
Loverseny Square |
| Mozi |
Cinema |
| Nagy Állomás |
Big Station |
| Nagy Vasút |
Big Railway |
| Verke |
Verke [River] |
| BFTC-Pálya |
Beregszász Football [soccer] and Tennis Club field |
| Furdőkert |
Bath [pond] Garden |
| Gimnazium |
Gymnasium [academic high school] |
| Kaszálő |
Meadow |
| Kórház |
Hospital |
| Nagy Vasút |
Big Railway |
| Református temető |
Reformed [Church] Cemetery |
| Strand |
Beach |
| Szarka-Hegy |
Szarka Mountain |
| Udvar |
Court |
| Verke |
Verke [River] |
|
This material is made available by JewishGen, Inc.
and the Yizkor Book Project for the purpose of
fulfilling our
mission of disseminating information about the Holocaust and
destroyed Jewish communities.
This material may not be copied,
sold or bartered without JewishGen, Inc.'s permission. Rights may be
reserved by the copyright holder.
JewishGen, Inc. makes no representations regarding the accuracy of
the translation. The reader may wish to refer to the original material
for verification.
JewishGen is not responsible for inaccuracies or omissions in the original work and cannot rewrite or edit the text to correct inaccuracies and/or omissions.
Our mission is to produce a translation of the original work and we cannot verify the accuracy of statements or alter facts cited.
Berehove, Ukraine
Yizkor Book Project
JewishGen Home Page
Yizkor Book Director, Lance Ackerfeld
This web page created by Lance Ackerfeld
Copyright © 1999-2025 by JewishGen, Inc.
Updated 17 May 2021 by LA